Christophe Faure Négociateur
Télécharger la fiche
+3
Coup de coeur

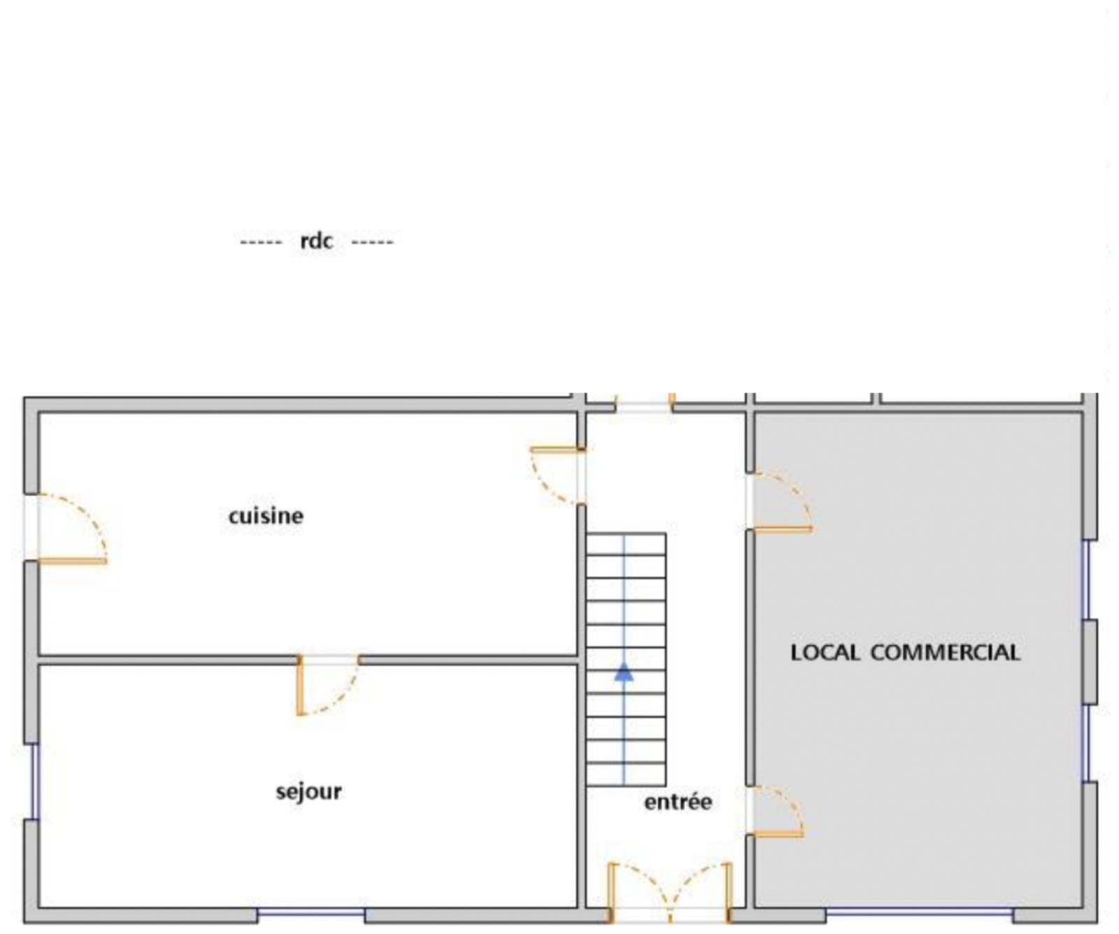
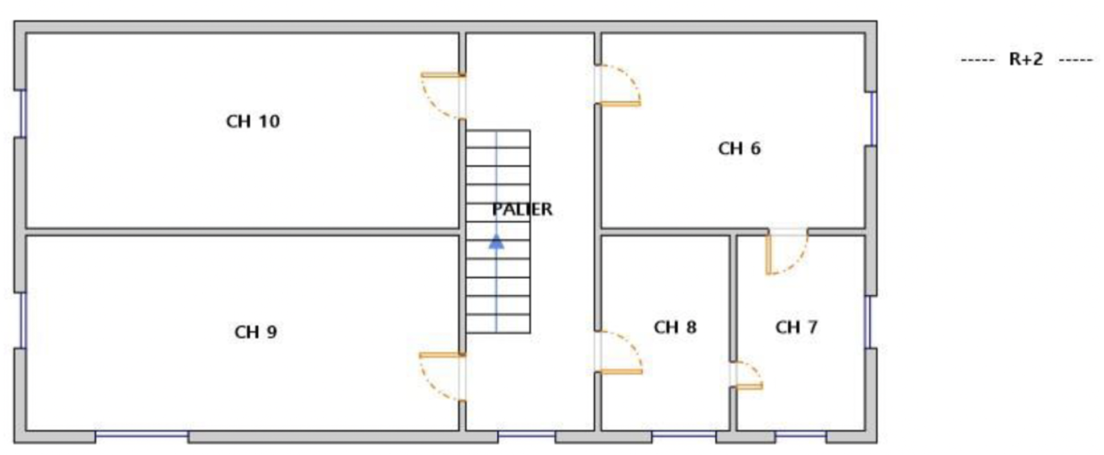
Maison 12 pièce(s) 10 chambre(s) 200 m²

Propières (69790)
59 000 € Référence 2024_02_08

Caractéristiques de ce bien

  • Surface 200 m²
  • carrez 200 m²
  • terrain 250 m²
  • 10 chambre(s)
  • 3 salle(s) de bain
  • 3 salle(s) d'eau
  • construit en 1800
  • cuisine séparée
  • 1 côté(s) mitoyen(s)
  • 3 niveau(x)
  • terrasse

A propos de ce bien

Fort potentiel locatif 8 % de rentabilité brute

Fernand Immobilier vous propose en exclusivité cette grande maison de village datant de 1890, située en plein cœur de Propières (seulement 1 h 10 minutes de Lyon).
Édifiée sur trois niveaux et offrant environ 200 m² habitables, cette bâtisse ancienne dispose de 12 pièces,

À rénover entièrement, elle représente une belle opportunité pour :


- Un projet de résidence principale ou secondaire,
- Un investissement locatif grâce à son potentiel de division en 6 lots,

Ou la création de gîtes ou chambres d’hôtes.

Les plus :

  • Charme de l’ancien : pierres, volumes, authenticité

  • Tout à pied (commerces, école, transports)

À découvrir sans tarder !

Contact : Christophe Faure – 07 88 53 33 37

Diagnostics énergétiques

Consommation énergétique
A B C D E F G
Emission de gaz à effet de serre
A B C D E F G
DPE vierge

Informations financières

Prix de vente honoraires TTC inclus 59 000 €

Calcul des mensualités

* Champs obligatoires