Christophe Faure Négociateur
Télécharger la fiche
+17
Nouveauté

Maison 6 pièce(s) 4 chambre(s) 160 m²

Beaujeu (69430)
135 000 € Référence 20251005

Caractéristiques de ce bien

  • Surface 160 m²
  • 4 chambre(s)
  • 1 salle(s) d'eau
  • construit en 1900
  • Chauffage individuel : chaudière (gaz)
  • 2 côté(s) mitoyen(s)
  • vue DÉGAGÉE
  • arboré

A propos de ce bien

EXCLUSIVITÉ – FERNAND IMMOBILIER


Maison de ville de 160 m² avec jardin – Cœur de Beaujeu

L'agence Fernand Immobilier a le plaisir de vous proposer en exclusivité cette charmante maison de ville d’environ 160 m², idéalement située en plein centre de Beaujeu, à proximité immédiate de toutes les commodités (écoles, commerces, collège, Carrefour Contact…).

Édifiée sur 4 niveaux, cette maison offre de beaux volumes modulables selon vos besoins :

  • Rez-de-chaussée : une agréable pièce de vie de 35 m² avec cuisine équipée, un cellier, un WC indépendant, ainsi qu’un accès à une cave voûtée de 40 m².
  • 1er étage : deux chambres et une salle d’eau avec WC.
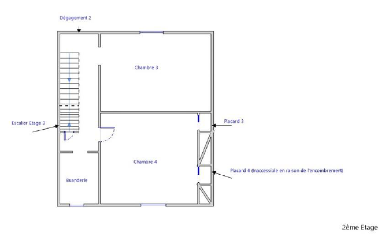
  • 2e étage : deux chambres supplémentaires et un WC indépendant.
  • Dernier niveau : une grande pièce de 40 m² avec vue dégagée, offrant de nombreuses possibilités d’aménagement (2 chambres, salle de jeux, bureau ou belle pièce de vie).

Un jardin non attenant de 300 m², situé à proximité immédiate de la maison, vient compléter ce bien rare sur le secteur.

Les plus : Chaudière gaz installée en 2020, entretenue chaque année / Toiture contrôlée en 2021 / Emplacement central et calme

Contact : Christophe Faure – 07 88 53 33 37

Diagnostics énergétiques

Consommation énergétique
A B C D E F G
Emission de gaz à effet de serre
A B C D E F G

Montant estimé des dépenses annuelles d'énergie pour un usage standard est compris entre 2 590 € et 3 530 € . Prix moyens des énergies indexés sur les années 2021, 2022 et 2023 (abonnements compris).

Informations financières

Prix de vente honoraires TTC inclus 135 000 €

Calcul des mensualités

* Champs obligatoires